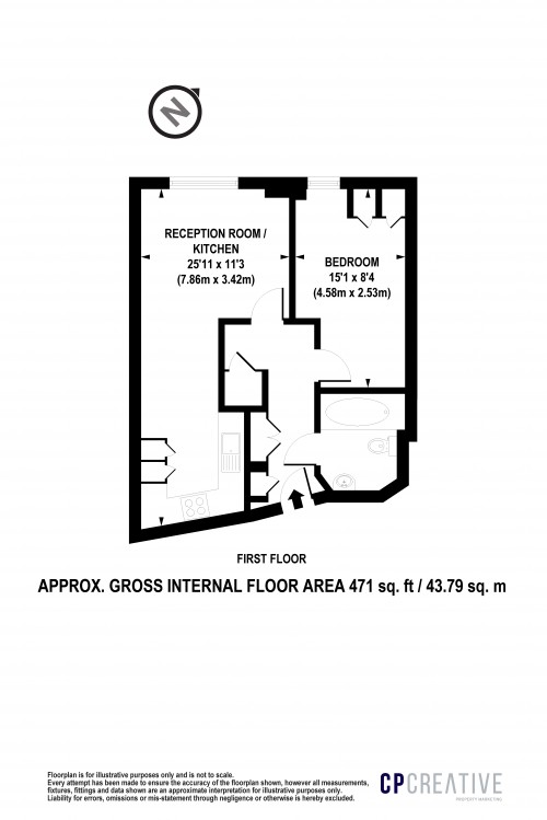
Floorplan for Orsman Road, 26 Orsman Road, Hoxton, N1
Let Agreed

Floorplan for Hoxton, N1
View Floorplan View EPC
Enquire Now Call Us
Take me There More Images
Back to Top Search Again