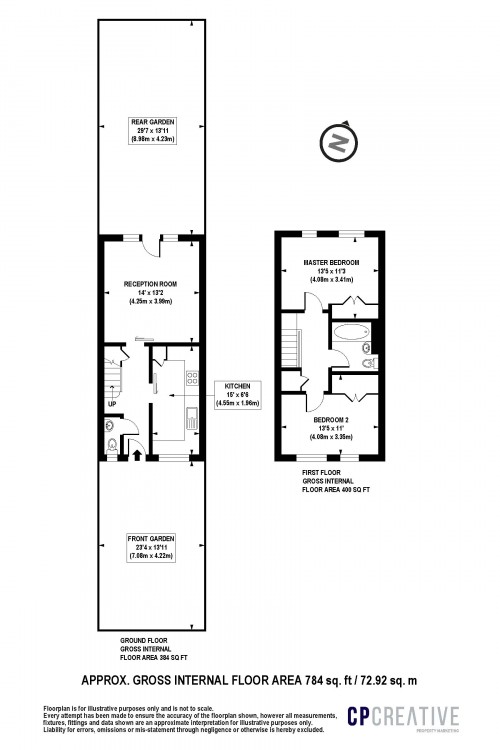
Floorplan for Tyers Terrace, Vauxhall, SE11
Let Agreed

Floorplan for Vauxhall , SE11
View Floorplan View EPC
Enquire Now Call Us
Take me There More Images
Back to Top Search Again